Umbau eines alten Schwarzwaldhofes                                                                                                    Gütenbach
Artwood GmbH                                                                                                                                                                in Zusammenarbeit mit Florian Bengert, Matthias Fehrenbach und Joschka Kannen
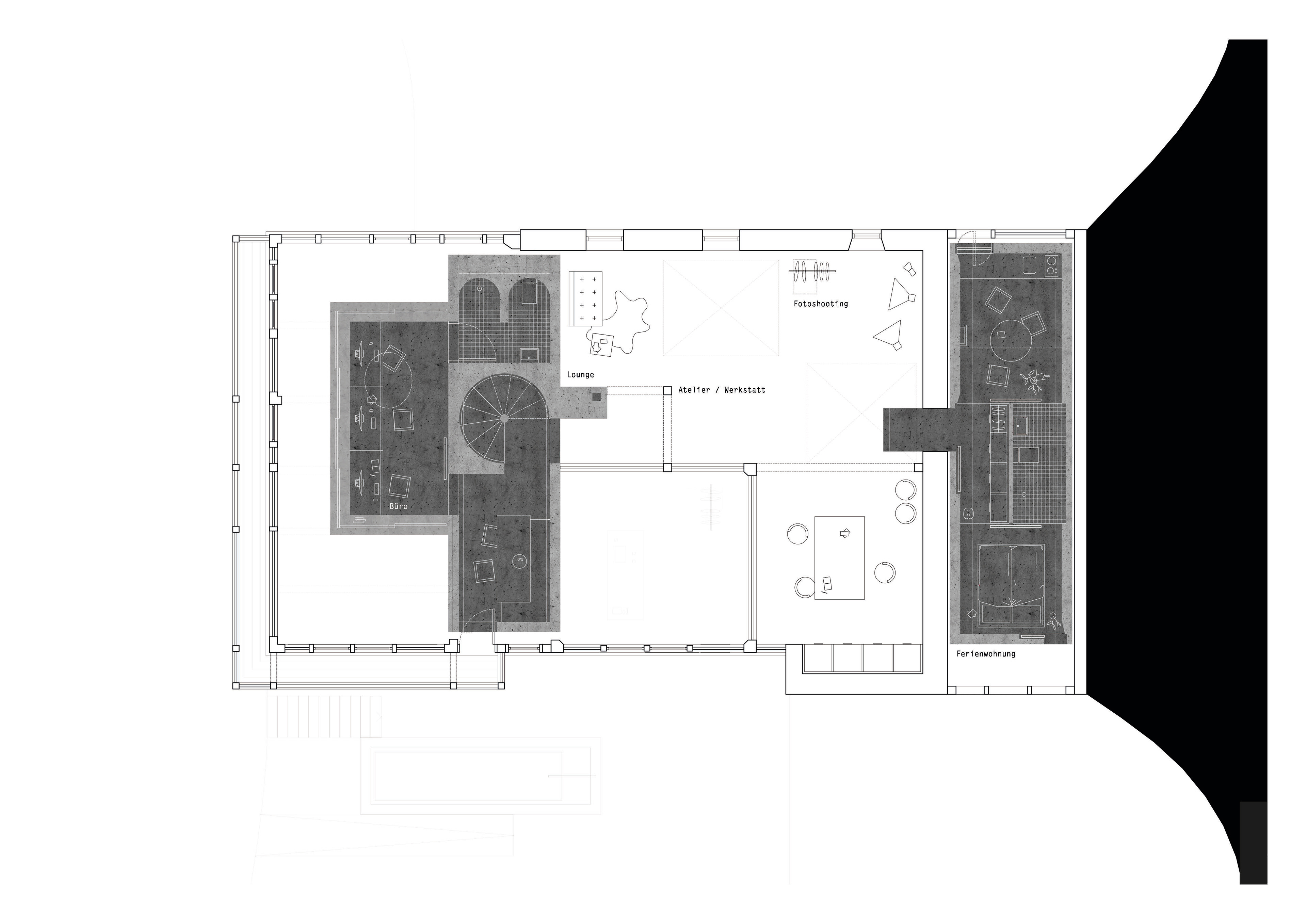
Die Schwarze Hilde hat ihren Namen vom Ruß der Kochfeuer, der sich über Jahrhunderte hinweg im ganzen Hof abgesetzt hat. Fast jedes Brett und jeder Balken hat so seine ganz charakteristische Patina erhalten. Der Hof soll nun zu einem Atelier samt Fotostudio, Showroom und Büroflächen umgebaut werden. Um den Eingriff in die bestehende Struktur so behutsam wie möglich zu gestalten, werden zwei raumhaltige Betonpylonen eingegossen. Sie enthalten Erschließung, Toiletten, Küche, Heizung und eine kleine Wohneinheit. Außerdem können ihre massiven Volumen als Wärmespeicher auch für das restliche Gebäude fungieren. Durch ihre Positionierung zueinander werden in der Schwarzen Hilde unterschiedliche Räume aufgespannt, in denen die jeweiligen Atelier- und Studioflächen unterkommen. Die alten Deckenöffnungen ermöglichen spannende Durchblicke und vermitteln großzügige Raumeindrücke, trotz der teilweise extrem niedrigen Geschosshöhen. Die Betonpylonen sollen in sägerauhem Holz geschalt werden, ihre Oberfläche und Textur kann so die Ursprünglichkeit des Hofes komplementieren. An allen übrigen Stellen sollen nur konstruktiv relevante Teile ertüchtig und ersetzt werden, sodass der einmalige Charakter und die Atmosphäre der Schwarzen Hilde erhalten bleiben.